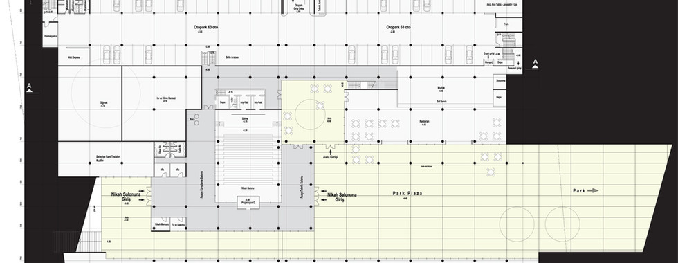
Tepebaşı City Hall
- STUDIO EVREN BASBUG

- Dec 1, 2004
- 1 min read
Updated: Mar 25, 2020

LOCATION: Eskişehir / Turkey
CLIENT: Tepebaşı Municipality
CATEGORY: Competition / Building / Administration / Office / City Hall
STATUS: National Competition
AREA (BLD): 15.500 sqm
AREA (OUTDOORS): 10.100 sqm
TIMETABLE:
Competition: December 2004
DESIGN OFFICE/S
Uygur Architects
Studio Evren Başbuğ Architects
CREDITS:
Architectural Concept:
Özcan Uygur (Lead Architect / Uygur Architects)
Özcan Uygur (Architect / Uygur Architects)
Evren Başbuğ (Architect)
Architectural Design Grup:
Özcan Uygur (Lead Architect / Uygur Architects)
Özcan Uygur (Architect / Uygur Architects)
Evren Başbuğ (Architect)
Necati Seren (Architect)
Umut Başbuğ (Undergraduate Student)
Güliz Erkan (Architect)
Melike Bilgin (Architect)
Technical Consultants:
A. Arıcan Kurtay (Civil Engineer)
Bahri Türkmen (Mechanical Engineer)
Kemal Ovacık (Electrical Engineer)





















































Comments